
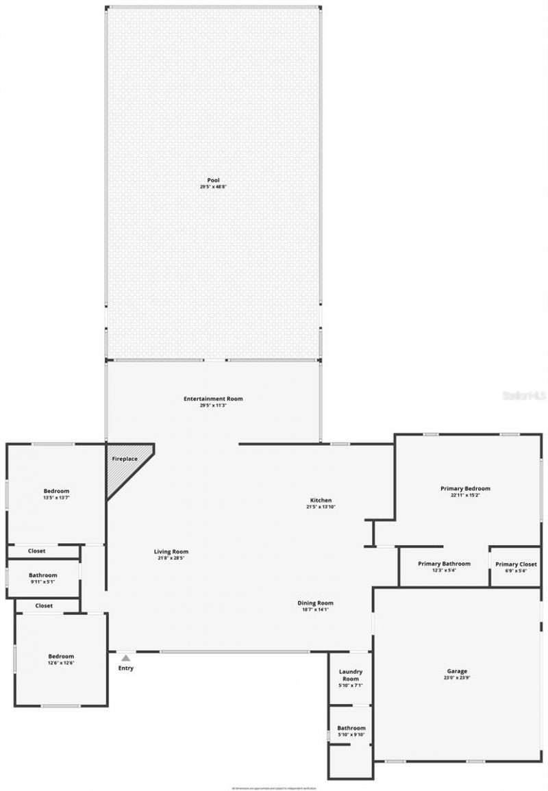
Completely Updated Saltwater Pool Home on the Tsala Apopka Chain of Lakes!!! Welcome to your dream retreat-an exquisitely updated saltwater pool home nestled on just under an acre of fully fenced, gated property along the stunning Tsala Apopka chain of lakes. Property boasts 3 bedrooms, 3 bathrooms and over 2700 square feet of living space. This beautiful home blends modern upgrades with timeless charm, offering both privacy and waterfront living at its finest. Step inside to an inviting open fl...Completely Updated Saltwater Pool Home on the Tsala Apopka Chain of Lakes!!! Welcome to your dream retreat-an exquisitely updated saltwater pool home nestled on just under an acre of fully fenced, gated property along the stunning Tsala Apopka chain of lakes. Property boasts 3 bedrooms, 3 bathrooms and over 2700 square feet of living space. This beautiful home blends modern upgrades with timeless charm, offering both privacy and waterfront living at its finest. Step inside to an inviting open floor plan featuring luxury vinyl plank flooring throughout, warm wood-beamed ceilings and a cozy fireplace that sets the perfect tone for relaxed Florida living. Abundant windows with plantation shutters fill the home with natural light and frame tranquil views of the surrounding landscape. The chef's kitchen is truly the heart of the home-showcasing solid wood cabinetry, granite countertops, double built-in ovens, a farmhouse-style sink, along with a center island with cooktop and pot filler. Whether you're entertaining or preparing everyday meals, this kitchen is designed to impress. The spacious primary suite offers a peaceful escape with its en-suite bathroom, walk-in closet, and a custom built-in dresser with TV space for added convenience and style. A split bedroom layout provides two generously sized guest rooms-ideal for visitors, family or a home office setup. The sun room and extra dining area overlook the sparkling saltwater pool and have incredible lake views, creating seamless indoor-outdoor living and perfect flow for gatherings. Outdoors, enjoy the Florida lifestyle with plenty of room to roam, play or relax. This acre property is adorned with two orange trees, a lemon tree, a banana tree, two fig trees, a peach tree and an Argentina grape tree! With nearly an acre of land, a secure gated entry, and access to the iconic Tsala Apopka lakes, this home delivers a rare combination of comfort, luxury and adventure! Property is less than 5 minutes from historic downtown Inverness Liberty Park, nature trails, farmer's markets, resaurants, medical offices & MORE!
View MoreCourtesy of
Agency Name: RIVERS 2 RANCHES REAL ESTATE
Agency Contact: 352-533-0891
Agent Name: Jennifer Kovach
Presented by
Agent Name: Karen Bailey
Agent Phone: 954.483.3759
Agency Title: The Keyes Company
Request Info
Send an email with a link to
223 S Nesbitt Terrace, Inverness, FL 34450.
Email 223 S Nesbitt Terrace, Inverness, FL 34450
Thank you for your inquiry! As a thank you, we have a Special Mortgage Offer for You.
We would like to provide you a free, no-obligation, home loan pre-approval review.